Aller au contenu

Le gite l'Érable

5/5
Noté 5 sur 5

Semoussac / Charente-Maritime / Gite pour 10 personnes

Le gîte l'Érable

5/5
Noté 5 sur 5

Semoussac / Charente-Maritime / Gite pour 10 personnes

Apprécier les bonnes choses de la vie, voilà pourquoi nous avons appelé ce gite l’Érable, il faut savoir que ses feuilles tardent à s’ouvrir, et tombent avec délicatesse.  Notre gite est Labellisé Gîtes de France depuis 2021

Location gite 10 personnes dans un gite de 182m2 sur 2 niveaux possédant 4 Chambres pour une capacité maximal de 10 personnes. 

À partir de 690€/semaine

Location gite 10 personnes

Superbe gîte rural entièrement rénové. Indépendant sur ferme en activité, sans vis-à-vis.
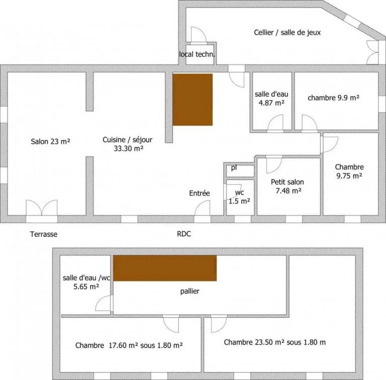
Au rez de chaussée 2 chambres avec 1 lit de 160. Salle d’eau et WC, cellier/salle de jeux (billard, babyfoot).
À l’étage (escalier sécurisé en partie haute et partie basse avec une barrière démontable), 2 chambres avec 1 lit pour 2 personnes et 2 de 90 jumelable en 180 chacun une salle d’eau et WC.
Terrasse et jardin non clos privatifs, sans vis-à-vis. Garage. Ping-pong. Barbecue et plancha. Piscine commune avec l’autre gîte, non chauffée (6 m x 12 m), accessible de mai à septembre (selon conditions climatiques et restrictions administratives).

  • Capacité : 10 personnes
  • Chambres: 4 chambres
  • Surface: 182 m2
  • Wifi
  • Animaux interdit

Le plan du gite 10 personnes

Plan du gîte 10 personnes
Plan du gite rural l'erable

Plan pour la location gite 10 personnes en Charente Maritime.

Équipements du gite 10 personnes

Intérieur

  • Congélateur
  • Lave-linge
  • Lave-vaisselle
  • Micro-ondes
  • Sèche-linge
  • Télévision

Extérieur

  • Barbecue
  • Jeux enfants
  • Piscine
  • Salon de jardin
  • Terrasse
  • Jardin
  • Garage – privé

Services

  • Equipement bébé
  • Wifi-Internet

Intérieur

  • Congélateur
  • Lave-linge
  • Lave-vaisselle
  • Micro-ondes
  • Sèche-linge
  • Télévision

Extérieur

  • Barbecue
  • Jeux enfants
  • Piscine
  • Salon de jardin
  • Terrasse
  • Jardin
  • Garage – privé

Services

  • Equipement bébé
  • Wifi-Internet

Les tarifs et options 2024 du gite 10 personnes

01/01 au 08/04 08/04 au 06/05 06/05 au 24/06 24/06 au 08/07 08/07 au 19/08 19/08 au 26/08 26/08 au 23/09 23/09 au 21/10 21/10 au 04/11 04/11 au 16/12 16/12 au 30/12
690 €
890 €
790 €
1190 €
1990 €
1190 €
790 €
690 €
790 €
690 €
850 €
Date Tarif
01/01 au 08/04
690 €
08/04 au 06/05
890 €
06/05 au 24/06
790 €
24/06 au 08/07
1190 €
19/08 au 26/08
1990 €
26/08 au 23/09
1190 €
23/09 au 21/10
690 €
21/10 au 04/11
790 €
04/11 au 16/12
690 €
16/12 au 30/12
850 €
  • Ménage fin de séjour (à payer sur place)100 € /séjour
  • Taxe de séjour1.21 € par jour et par personne
  • Linge de toilette (à payer sur place)6 € /personne
  • Draps lit 2 personnes (à payer sur place)12 € /paire de draps
  • Draps lit 1 personne (à payer sur place)12 € /paire de draps

Découvrez notre autre gîte et la piscine

Photo du gîte les Marronniers

Découvrez le gîte les Marronniers

Venez découvrir notre autre gîte les Marronniers en plein cœur de la Charente-Maritime ! Location gite 6 personnes dans un gite de 90m2 de plain-pied possédant 3 Chambres pour une capacité maximal de 6 personnes.  

Photo de la piscine commune (1)

Découvrez notre piscine

Venez découvrir notre espace de détente, une magnifique piscine creusée pour que vous puissiez profiter des beaux jours en vous baignant dans un endroit unique en famille ou entre amis !

La location gite 10 personnes sur les sites partenaires

Nous vous attendons avec impatience dans l’un de nos gites alors n’hésitez pas et venez profiter d’un séjour magnifique en Charente-Maritime ! 

© 2011 Tous droits réservés / Gite Morandière

Pièces de vie

Entrée du gite l'érable
Salon du gite l'Érable
Salon pour enfants gite l'Érable

Chambres

Chambre violette gite l'Érable (3 personnes)
Chambre verte gite l'Érable (3 personnes)
Chambre rouge gite l'Érable (2 personnes)
Chambre bleue gite l'Érable (2 personnes)

Cuisine

Cuisine gite l'Érable avec table à manger
Cuisine gite l'Érable
Salle à manger gite l'Érable

Salles de bains

Première salle de bains gite l'Érable
Première salle de bains gite l'Érable
Première salle de bains gite l'Érable
Deuxième salle de bains gite l'Érable
Deuxième salle de bains gite l'Érable

Salles de jeux

Salle de jeux gite l'Érable
Billard gite l'Érable
Baby foot gite l'Érable

Extérieur terrasse

Terrasse table de ping pong gite l'Érable
Terrasse BBQ gite l'Érable
Terrasse gite l'Érable

Extérieur Jardin

Jardin gite l'Érable
Balançoire gite l'Érable
Jardin gite l'Érable

Piscine

Piscine gite l'Érable
Piscine gite l'Érable
Piscine gite l'Érable

Pièces de vie

Entrée du gite l'érable
Salon du gite l'Érable
Salon pour enfants gite l'Érable

Chambres

Chambre violette gite l'Érable (3 personnes)
Chambre verte gite l'Érable (3 personnes)
Chambre rouge gite l'Érable (2 personnes)
Chambre bleue gite l'Érable (2 personnes)

Cuisine

Cuisine gite l'Érable avec table à manger
Cuisine gite l'Érable
Salle à manger gite l'Érable

Salles de bains

Première salle de bains gite l'Érable
Première salle de bains gite l'Érable
Deuxième salle de bains gite l'Érable
Deuxième salle de bains gite l'Érable

Salle de jeux

Salle de jeux gite l'Érable
Billard gite l'Érable
Baby foot gite l'Érable

terrasse

Terrasse table de ping pong gite l'Érable
Terrasse BBQ gite l'Érable
Terrasse gite l'Érable

Jardin

Jardin gite l'Érable
Balançoire gite l'Érable
Jardin gite l'Érable

piscine

Piscine gite l'Érable
Piscine gite l'Érable

salon et cuisine

Salon pour enfants gite l'Érable
Salon pour enfants gite l'Érable
Salon pour enfants gite l'Érable
Salon pour enfants gite l'Érable
Cuisine gite Les Marronniers
Cuisine gite Les Marronniers

Chambres

Chambre Mauve gite Les Marronniers (2 personnes)
Chambre rose gite Les Marronniers (2 personnes)
Chambre verte gite Les Marroniers (2 personnes)

Salle de bains

Salle de bains gite Les Marronniers

Jardin

Jardin gite Les Marronniers
Balançoire gite Les Marronniers
BBQ gite Les Marronniers

piscine

Piscine gite Les Marronniers
Piscine gite Les Marronniers

Salon et cuisine

Salon gite Les Marronniers
Salon du gite les Marronniers
Salon du gite les Marronniers
Cuisine gite Les Marronniers
Cuisine gite Les Marronniers

Chambres

Chambre Rose gite Les Marronniers (2 personnes)
Chambre Mauve gite Les Marronniers (2 personnes)
Chambre verte gite Les Marronniers (2 personnes)
Chambre verte gite Les Marronniers (2 personnes)

Salle de bains

Salle de bains gite Les Marronniers

Jardin

Jardin gite Les Marronniers
BBQ gite Les Marronniers
Balançoire gite Les Marronniers

Piscine

Piscine gite Les Marronniers
Piscine gite Les Marronniers
Piscone gite Les Marronniers